Vorstudie Informations- und Orientierungssystem (IOS)
a
Ausgangslage
b
Bestandsaufnahme
1
Planmaterial
2
Fotografische Analyse
3
Kommunikationskanäle
4
Nutzer*innenszenarien
5
Barrierefreiheit
6
Gespräche
7
Temporäre Leitsysteme
8
Referenzprojekte
1
BURG
1
Entwurf Leitsystem
2
BURG Grotesk
3
Erscheinungsbild
4
Leitsystem Mediathek
5
Leitsystem Designhaus
2
Kunsthochschulen
3
Weitere Hochschulen
4
Öffentliche Einrichtungen
5
Historische Quellen
6
Installationen
9
Technische Möglichkeiten
10
Weitere Links
c
Zentrale Erkenntnisse
d
Handlungsfelder
e
Prototypen
f
Umsetzungsphasen
g
Austausch
h
Impressum
i
Login
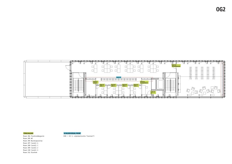
Leitsystem Mediathek